Familienidyll im Grünen: Viel Platz, neue Heizung (04/26) & perfekte Bedingungen für Mehrgenerationenwohnen!
Objektart
Adresse
Objektdaten
Informationen
Ausstattung
Details
Ein Zuhause mit Herz - Raum für Generationen, Ideen und Zukunft
Manche Immobilien sind mehr als nur vier Wände - sie sind ein Ort, an dem Leben passiert. Diese besondere Liegenschaft vereint gleich zwei Häuser auf einem Grundstück und eröffnet damit Raum für Familienglück, gemeinsame Generationen oder clevere Investitionen.
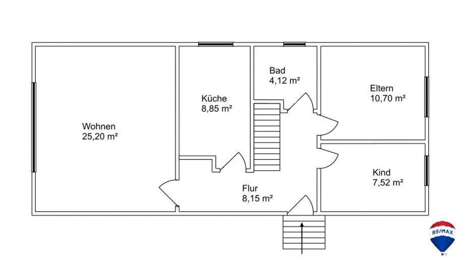
Das Haupthaus aus dem Jahr 1961 bildet das Herzstück: ca. 120 m² voller Möglichkeiten, bereits bezugsfertig und liebevoll modernisiert. Hier trifft gewachsene Substanz auf zeitgemäßen Komfort. Die neue Heizungsanlage (April 2026) sorgt für ein gutes Gefühl in Sachen Zukunft - der Energieausweis wird aktuell entsprechend erneuert.
Im Erdgeschoss erwarten Sie helle, vielseitig nutzbare Räume, eine Küche und ein Bad - perfekt für den Alltag. Im Dachgeschoss entfaltet sich weiteres Potenzial: ob großzügiger Familienbereich oder separate Wohneinheit als Einliegerwohnung - hier gestalten Sie Ihr Zuhause so flexibel, wie Ihr Leben es verlangt.
Mehr als Wohnen - ein zweites Haus inklusive
Der Anbau aus dem Jahr 1974 ergänzt das Ensemble ideal: ca. 75 m² Wohnfläche, aktuell vermietet und damit eine attraktive, laufende Einnahmequelle. Ob als Kapitalanlage oder spätere Nutzung für Familie oder Beruf - Sie halten sich alle Optionen offen.
Außenbereich mit Charakter und Möglichkeiten
Das massive Nebengebäude bietet weit mehr als nur Stauraum: Garage, Werkstatt, Fahrradraum oder sogar Platz für tierische Mitbewohner - hier findet alles seinen Platz. Der gepflasterte Hof schafft zusätzliche Stellflächen und rundet das praktische Gesamtbild ab.
Ein Ort, der mit Ihnen wächst
Ob Mehrgenerationenwohnen, Arbeiten von zu Hause, Vermietung oder einfach viel Platz für das eigene Leben - diese Immobilie passt sich Ihren Bedürfnissen an. Selten findet man eine Kombination aus Größe, Flexibilität und bereits erfolgten Modernisierungen in dieser Form.
Fazit:
Ein Zuhause mit Charakter, Perspektive und viel Raum für Ihre Zukunftspläne - hier entstehen nicht nur Wohnräume, sondern Lebensräume.
Alles Wichtige auf einem Blick:
- Heizungsanlage neu (April/2026) im Haupthaus
- EKB
- Holzfenster
- Böden: Fliesen, Laminat
- Haupthaus zwei Bäder
- tlw. Außenjalousien
- Anbau ein Bad mit Fenster
- Haupthaus: EG und DG sep. Stromzähler
- Haupthaus und Anbau sep. Heizung
- Gerätschuppen
- kleiner Unterstand im Garten
- Garage
- Garten
u.v.m.
Lage - idyllisch wohnen, bestens angebunden
Willkommen in Hohne - einem charmanten Ort, eingebettet in die reizvolle Landschaft nahe Celle. Hier genießen Sie die Ruhe des Landlebens und gleichzeitig die Vorzüge einer hervorragenden Anbindung.
Das Zentrum von Celle erreichen Sie in wenigen Minuten und profitieren dort von einer vielfältigen Auswahl an Einkaufsmöglichkeiten, Restaurants und kulturellen Angeboten. Auch die Städte Hannover und Braunschweig sind durch die gute Verkehrsanbindung bequem erreichbar.
Für Familien besonders attraktiv: Kindergärten, Schulen und Spielplätze befinden sich in der Umgebung und schaffen ein ideales Umfeld für Groß und Klein.
Alle Angaben in diesem Exposé wurden sorgfältig und so vollständig wie möglich gemacht. Dennoch kann das Vorhandensein von Fehlern nicht ausgeschlossen werden. Die Angaben in diesem Exposé erfolgen daher ohne Gewähr und basieren ausschließlich auf Informationen, die uns vom Verkäufer bzw. von Dritten zur Verfügung gestellt wurden, sodass wir eine Gewähr für die Vollständigkeit, Richtigkeit und Aktualität dieser Angaben nicht übernehmen können.
***Da wir unseren Auftraggebern zur Diskretion verpflichtet sind und es sich bei den Informationen zu der Immobilie um sensible Daten handelt, bitten wir um Verständnis, dass wir Ihre Anfragen nur unter vollständiger Nennung Ihres Namens, der Anschrift und der Telefonnummer bearbeiten können!***
Weitere Fragen beantwortet Ihnen sehr gerne Frau Gürbet Ekinci aus unserem Büro in Hannover unter Telefon 0162 24 47 198 Rufen Sie uns an. Wir freuen uns, Ihnen bei der Suche nach Ihrer Wunschimmobilie behilflich sein zu dürfen.
Ansprechpartner
Mobil: 00491622447198
guerbet.ekinci@remax.de
Ich bin damit einverstanden, dass mir Karten von Google angezeigt werden. Es gelten die Datenschutzbedingungen von Google (https://policies.google.com/privacy).
Ich bin einverstanden